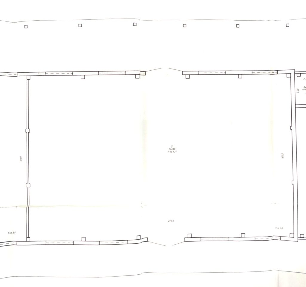
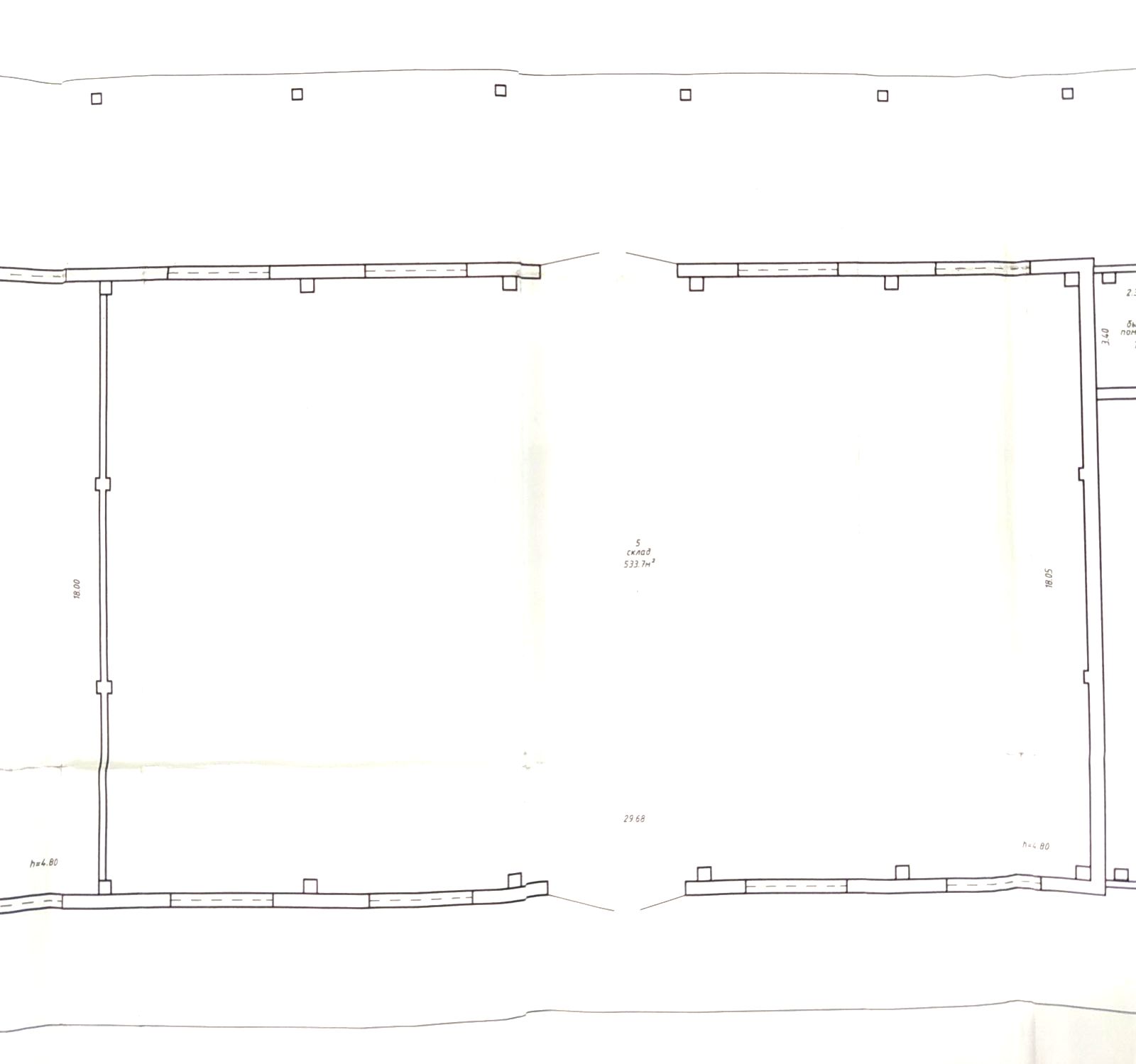
Складское помещение по адресу г. Брест, ул. Я. Купалы, 132А

ТУП «Брестская межрайонная торговая база» сдает в аренду складское помещение по адресу г. Брест, ул. Я. Купалы, 132А. Площадь помещения 533,7 кв.м.

Тел. +375 (33) 313-80-67, +375 (29) 529-60-02